1520/1526 SW 9th Place, Apt 204 $450,000
- Baujahr
- 2025
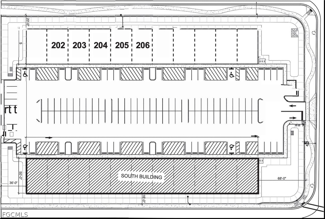
Introducing The Flex at Trafalgar, Cape Coral’s newest flex warehouse development, designed to accommodate a wide range of business, storage, and professional uses. Located at 1007 Trafalgar Parkway, this modern project offers high-quality construction, excellent accessibility, and flexible layouts ideal for owner-users or investors. There are five units currently available, each offering approximately 1,470 square feet with a 30-foot wide by 49-foot deep configuration. The units are constructed with tilt-wall concrete construction and feature large overhead doors, making them well-suited for light industrial use, storage, contractor space, service businesses, or showroom-style operations.Each unit includes an ADA-compliant bathroom, central air conditioning, NFPA 13 fire suppression system, and 125 AMP 3-phase electrical service, providing a strong infrastructure for a variety of business needs. Clear ceiling heights of approximately 16–17 feet allow for efficient use of vertical space. The property is located in Flood Zone X, offering additional peace of mind. The Flex at Trafalgar is thoughtfully designed with a clean, modern aesthetic and convenient on-site circulation, making it an attractive and functional option for businesses seeking flexibility and long-term value. The location offers easy access to major roadways and surrounding Cape Coral commercial corridors. This is a rare opportunity to own within a newly developed flex warehouse project in a growing Southwest Florida market. Availability is limited. Buyer to verify all specifications and permitted uses.
Generelle Ausstattung
Virtueller Rundgang
1520/1526 SW 9th Place, Apt 204
Cape Coral, Florida 33991
United States
Cape Coral, Florida 33991
United States
Landkreis: Lee
Kauf/Miete: For Sale
Objekt-ID: 2026006807
Immobilienart: Commercial
Eingetragen von Royal Shell Real Estate, Inc. am Freitag, 06. Februar 2026 [For Sale]
- Baujahr
- 2025
Virtueller Rundgang
1520/1526 SW 9th Place, Apt 204
Cape Coral, Florida 33991
United States
Cape Coral, Florida 33991
United States
Landkreis: Lee
Kauf/Miete: For Sale
Objekt-ID: 2026006807
Immobilienart: Commercial
Eingetragen von Royal Shell Real Estate, Inc. am Freitag, 06. Februar 2026 [For Sale]
